


DEA-2E型电气控制箱
一、用途
| DEA-2E型电气控制箱,用于自动控制一套由U- ※※ AE 终端式电动干油润滑系统,在油泵经过任意的间隔时间后、自动地使油泵运转,给油完成后自动停止。 控制箱能发出“供油时间延长”、“油箱液位低”、“超负载运转”三种故障信号。设有一组外部接点,可向主机或主控室发送润滑系统运转状况(停止、运转、故障)信号。 | ![]() |
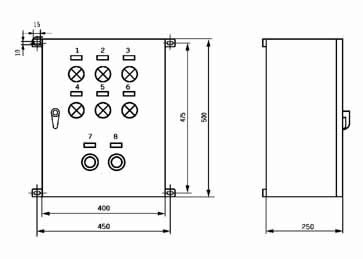
二、外形及安装尺寸

三、标牌文字表
| 序号 | 符号 | 标牌文字 | 序号 | 符号 | 标牌文字 |
| 1 | 1HL | 电源 | 5 | 5HL | 油箱液位低 |
| 2 | 2HL | 停止 | 6 | 6HL | 超负荷运转 |
| 3 | 3HL | 运转 | 7 | S0 | 任意运转 |
| 4 | 4HL | 供油时间延长 | 8 | S1 | 故障复位 |
四、DEA-2E型电控箱外部接线图

五、使用说明
1、适用主电源3N 50HZ AC 380V。 2、适用环境温度-10℃~40℃,湿度90%。 3、周围环境无导电的介质(气体、液体)。 4、垂直安装,其倾斜度不大于5°。 |
启东德乐润滑设备有限公司
全国服务热线:0513-83783788
电话:0513-83783788
传真:0513-83358639
QQ:378068108
邮箱:rhsblm@163.com
地址:启东市惠萍工业园河湾路88号
| * 联系人: | 请填写您的真实姓名 |
| * 手机号码: | 请填写您的联系电话 |
| 电子邮件: | |
| * 采购意向描述: | |
| 请填写采购的产品数量和产品描述,方便我们进行统一备货。 | |
| 验证码: |
|



| 我要评论: | |
| 内 容: |
(内容最多500个汉字,1000个字符) |
| 验证码: | 看不清?! |
电话:0513-83783788
官方QQ:3073722347
邮箱:rhsblm@163.com
地址:启东市惠萍工业园河湾路88号
共有-条评论【我要评论】